Wieniec budowlany to kluczowy, choć często niedoceniany element konstrukcyjny każdego domu, zapewniający jego stabilność i bezpieczeństwo. Ten artykuł to kompleksowy przewodnik, który krok po kroku wyjaśni, czym jest wieniec, dlaczego jest niezbędny oraz jak prawidłowo go wykonać, aby Twój budynek służył przez lata.
Prawidłowe wykonanie wieńca na budynku klucz do stabilności i bezpieczeństwa konstrukcji
- Wieniec budowlany to żelbetowa belka spajająca ściany nośne, kluczowa dla stabilności i bezpieczeństwa całej konstrukcji.
- Proces wykonania obejmuje trzy główne etapy: precyzyjne szalowanie, prawidłowe zbrojenie stalowe oraz staranne betonowanie i pielęgnację.
- Należy stosować beton klasy minimum C16/20 oraz odpowiednio dobrane pręty zbrojeniowe (np. fi 12-16 mm) i strzemiona.
- Kluczowe jest zapewnienie ciągłości zbrojenia w narożnikach, właściwej otuliny betonu oraz jego dokładne zagęszczenie.
- Pominięcie wieńca lub błędy w jego wykonaniu prowadzą do poważnych uszkodzeń konstrukcyjnych, takich jak pękanie ścian.
Czym jest wieniec i dlaczego nie można z niego zrezygnować?
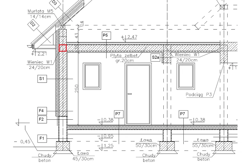
Wieniec budowlany to nic innego jak żelbetowa belka, która opasuje budynek w górnej części ścian nośnych na każdej kondygnacji. Wyobraź sobie go jako solidny pas, który spina całą konstrukcję. Jego fundamentalna rola polega na spajaniu wszystkich elementów budynku w jedną, sztywną całość. Dzięki niemu ściany nie "rozjeżdżają się" pod wpływem obciążeń, a cała konstrukcja zachowuje swoją geometrię i stabilność. Z mojej perspektywy, rezygnacja z wieńca to proszenie się o poważne problemy konstrukcyjne w przyszłości. To element, którego po prostu nie można pominąć, jeśli zależy nam na bezpieczeństwie i trwałości domu.
Główne zadania wieńca: od stabilizacji po ochronę przed pękaniem ścian
Wieniec budowlany pełni szereg niezwykle istotnych funkcji, które są kluczowe dla długowieczności i bezpieczeństwa każdego budynku. Oto jego główne zadania:
- Zapobieganie "rozjeżdżaniu się" ścian: Wieniec tworzy sztywny obwód, który skutecznie przeciwdziała siłom rozporowym, mogącym prowadzić do odchylania się ścian na zewnątrz.
- Równomierne przenoszenie obciążeń: To on odpowiada za równomierne rozłożenie ciężaru ze stropu i dachu na wszystkie ściany nośne, a następnie na fundamenty. Dzięki temu obciążenia są rozkładane w sposób kontrolowany i bezpieczny.
- Ochrona przed uszkodzeniami: Wieniec chroni konstrukcję przed negatywnymi skutkami nierównomiernego osiadania gruntu, silnych podmuchów wiatru czy obciążenia od zalegającego śniegu. Działa jak bufor, absorbując i rozpraszając te siły.
- Zwiększenie sztywności budynku: Spina on wszystkie ściany w jedną całość, co znacząco zwiększa ogólną sztywność i odporność budynku na różnego rodzaju deformacje.
Konsekwencje braku lub błędów w wykonaniu wieńca: co ryzykujesz?
Jako ekspert w dziedzinie budownictwa, muszę z całą stanowczością podkreślić, że pominięcie wieńca budowlanego lub jego błędne wykonanie to jeden z najpoważniejszych błędów, jakie można popełnić na budowie. Konsekwencje mogą być katastrofalne. W najlepszym przypadku, bez wieńca lub z wieńcem wykonanym niezgodnie ze sztuką, na ścianach zaczną pojawiać się pęknięcia, często o charakterze konstrukcyjnym, które z czasem będą się pogłębiać. W gorszym scenariuszu, budynek może stracić stabilność, a jego konstrukcja ulegnie poważnym deformacjom. W skrajnych przypadkach, zwłaszcza przy silnych obciążeniach dynamicznych (np. wiatru) lub nierównomiernym osiadaniu, może dojść nawet do katastrofy budowlanej. Wieniec to nie jest opcja, to konieczność dla bezpieczeństwa Twojego domu.

Rodzaje wieńców budowlanych: który sprawdzi się w Twoim projekcie?
W zależności od technologii budowy stropu i ogólnego projektu konstrukcyjnego, stosuje się różne typy wieńców. Każdy z nich ma swoje specyficzne zastosowanie i wymaga odpowiedniego wykonania. Przyjrzyjmy się im bliżej.
Wieniec równy: standardowe rozwiązanie dla stropów prefabrykowanych
Wieniec równy to najczęściej spotykany rodzaj wieńca. Charakteryzuje się tym, że jego górna krawędź znajduje się na tym samym poziomie co strop. Jest to rozwiązanie idealne i najczęściej stosowane przy stropach z płyt prefabrykowanych, takich jak popularne płyty kanałowe. Dzięki temu, że wieniec i strop tworzą jedną płaszczyznę, montaż jest prosty, a obciążenia rozkładają się w sposób optymalny.
Wieniec opuszczony: kiedy konstrukcja wymaga obniżenia belki?
Wieniec opuszczony, jak sama nazwa wskazuje, jest umieszczony poniżej poziomu stropu. Ten typ wieńca stosuje się głównie przy stropach gęstożebrowych, na przykład typu Teriva. W takich konstrukcjach belki stropowe nie mogą opierać się bezpośrednio na murze, dlatego wieniec musi być obniżony, tworząc dla nich odpowiednie podparcie. To rozwiązanie wymaga precyzyjnego wykonania, aby zapewnić prawidłowe oparcie dla belek stropowych.
Wieniec podniesiony: kluczowy przy stropach monolitycznych i na poddaszu
Wieniec podniesiony to taki, który znajduje się powyżej poziomu stropu. Jest on wykorzystywany przede wszystkim przy stropach monolitycznych, gdzie często stanowi integralną część konstrukcji stropu. Co więcej, wieniec podniesiony jest niezbędny, gdy konieczne jest wykonanie żelbetowej ścianki kolankowej na poddaszu. W takim przypadku wieniec nie tylko spina ściany, ale także stanowi podstawę dla konstrukcji dachu, przenosząc na nią obciążenia.
Jak wykonać wieniec na budynku? Przewodnik krok po kroku
Prawidłowe wykonanie wieńca to proces, który wymaga precyzji i przestrzegania zasad sztuki budowlanej. Podzieliłem go na cztery kluczowe etapy, które krok po kroku przeprowadzą Cię przez cały proces.

Etap 1: Szalowanie, czyli tworzenie idealnej formy dla betonu
Szalowanie, inaczej deskowanie, to pierwszy i niezwykle ważny etap. Jego celem jest stworzenie tymczasowej formy, do której wlejesz beton. Od jakości szalunku zależy kształt i wymiary gotowego wieńca, a co za tym idzie jego wytrzymałość. Oto kluczowe wymagania:
- Stabilność: Szalunek musi być na tyle stabilny, aby wytrzymać ciężar wlewanego betonu i siły z nim związane.
- Szczelność: Nieszczelności mogą prowadzić do wycieku mleczka cementowego, co osłabia beton.
- Dobre wypoziomowanie: Wieniec musi być idealnie poziomy, aby strop mógł być równo ułożony.
- Odpowiednie wymiary: Szalunek musi dokładnie odwzorowywać wymiary wieńca z projektu.
Do wykonania szalunku najczęściej używa się desek, płyt OSB lub sklejki wodoodpornej. Przed zalaniem betonem, wnętrze formy pokrywam płynem antyadhezyjnym. To prosty, ale skuteczny zabieg, który zapobiega przywieraniu betonu do szalunku i ułatwia jego późniejszy demontaż.
Etap 2: Zbrojenie: stalowe serce konstrukcji, które gwarantuje wytrzymałość
Zbrojenie to stalowe serce wieńca, które nadaje mu odporność na rozciąganie kluczową cechę betonu żelbetowego. Bez zbrojenia wieniec byłby kruchy. Typowe zbrojenie wieńca składa się z czterech głównych prętów podłużnych, które są połączone ze sobą strzemionami. Oto kluczowe parametry:
- Pręty podłużne: Zazwyczaj stosuje się stal żebrowaną klasy AIII N o średnicy 12-16 mm.
- Strzemiona: Wykonuje się je ze stali gładkiej klasy A0 o średnicy 6 mm.
- Rozstaw strzemion: Optymalny rozstaw strzemion to 20-30 cm.
Niezwykle ważne jest zachowanie ciągłości zbrojenia, zwłaszcza w narożnikach budynku. Pręty muszą być odpowiednio wygięte lub połączone na zakład, aby siły mogły być swobodnie przenoszone przez całą konstrukcję. W żadnym wypadku nie wolno ich po prostu "uciąć" i połączyć bez odpowiedniego zakładu.
Etap 3: Betonowanie: kluczowe zasady wylewania i zagęszczania mieszanki
Gdy szalunek i zbrojenie są gotowe, przychodzi czas na betonowanie. Do wykonania wieńca należy użyć betonu o odpowiedniej klasie wytrzymałości co najmniej C16/20 (dawniej B20). Mieszanka betonowa powinna być wlewana jednym ciągiem, aby uniknąć powstawania tzw. zimnych spoin, które mogłyby osłabić konstrukcję. Po wylaniu betonu absolutnie konieczne jest jego zagęszczenie mechaniczne. Najczęściej używa się do tego wibratora wgłębnego. Celem wibrowania jest usunięcie pęcherzy powietrza uwięzionych w mieszance, co zwiększa gęstość, a co za tym idzie, wytrzymałość i mrozoodporność betonu.
Etap 4: Pielęgnacja i rozszalowanie, czyli jak zadbać o pełną moc betonu
Po zabetonowaniu wieńca praca jeszcze się nie kończy. Świeży beton wymaga odpowiedniej pielęgnacji, aby mógł osiągnąć pełną wytrzymałość. Przez kilka dni, zwłaszcza w upalne dni, należy go chronić przed zbyt szybkim wysychaniem. Można to zrobić poprzez regularne polewanie wodą lub przykrywanie folią. Niewłaściwa pielęgnacja może prowadzić do powstawania rys skurczowych i obniżenia końcowej wytrzymałości. Szalunki można zdemontować najwcześniej po 24-48 godzinach, kiedy beton osiągnie już wstępną wytrzymałość. Zawsze jednak warto sprawdzić zalecenia projektanta lub producenta betonu.
Materiały i wymiary wieńca: specyfikacja techniczna
Wybór odpowiednich materiałów i precyzyjne określenie wymiarów wieńca to podstawa jego trwałości i funkcjonalności. Nie ma tu miejsca na improwizację wszystko musi być zgodne z projektem.
Jaki beton wybrać na wieniec? (Klasa C16/20 to absolutne minimum)
Jak już wspomniałem, do wykonania wieńca należy stosować beton o odpowiedniej klasie wytrzymałości. Absolutne minimum to beton klasy C16/20 (według starej nomenklatury B20). Dlaczego to takie ważne? Ponieważ jakość betonu bezpośrednio przekłada się na ostateczną wytrzymałość i trwałość wieńca. Beton o niższej klasie może nie sprostać obciążeniom, co w konsekwencji doprowadzi do uszkodzeń konstrukcji. Zawsze warto zainwestować w beton od sprawdzonego dostawcy i upewnić się, że jego parametry są zgodne z projektem.
Stal zbrojeniowa w praktyce: jaką średnicę prętów i strzemion zastosować?
Wybór odpowiedniej stali zbrojeniowej jest równie kluczowy jak jakość betonu. Oto praktyczne wskazówki dotyczące jej wyboru:
- Pręty podłużne: Najczęściej stosuje się stal żebrowaną klasy AIII N (obecnie B500SP) o średnicach od 12 do 16 mm. Dokładna średnica zależy od obciążeń i wymiarów wieńca, zawsze zgodnie z projektem.
- Strzemiona: Powinny być wykonane ze stali gładkiej klasy A0 (obecnie BSt500S) o średnicy 6 mm.
- Rozstaw strzemion: Optymalny rozstaw to zazwyczaj 20-30 cm, ale i tu należy bezwzględnie trzymać się wytycznych projektowych.
Pamiętaj, że zbrojenie musi być czyste, bez rdzy, która mogłaby osłabić jego przyczepność do betonu.
Typowe wymiary wieńca: od czego zależą jego wysokość i szerokość?
Wiele osób pyta o "typowe" wymiary wieńca. Muszę jednak podkreślić, że nie ma uniwersalnych wymiarów, które pasowałyby do każdego budynku. Wysokość i szerokość wieńca są ściśle uzależnione od kilku czynników:
- Indywidualny projekt konstrukcyjny: To projektant oblicza i określa optymalne wymiary.
- Grubość ścian nośnych: Wieniec zazwyczaj ma szerokość równą grubości ściany.
- Przewidywane obciążenia: Im większe obciążenia (np. ciężki strop, duży dach), tym wieniec musi być solidniejszy.
Dlatego zawsze, ale to zawsze, należy kierować się wytycznymi zawartymi w projekcie. Samodzielne zmienianie wymiarów wieńca to proszenie się o kłopoty.

Najczęstsze błędy przy wykonywaniu wieńca: jak ich uniknąć?
Nawet doświadczeni wykonawcy mogą popełnić błędy przy wykonywaniu wieńca. Moim zadaniem jest wskazać te najczęstsze, abyś mógł ich uniknąć i zapewnić swojemu budynkowi maksymalne bezpieczeństwo.
Problem nr 1: Brak ciągłości zbrojenia w narożnikach jak go uniknąć?
To jeden z najkrytyczniejszych błędów. W narożnikach budynku oraz na łączeniach prętów zbrojenie musi być ciągłe. Jeśli pręty zostaną po prostu ucięte i nie połączone w odpowiedni sposób (np. przez zagięcie prętów na zakład o długości zgodnej z projektem, zazwyczaj minimum 50 średnic pręta), wieniec w tych miejscach będzie osłabiony i nie będzie w stanie prawidłowo przenosić sił rozciągających. To właśnie w narożnikach najczęściej dochodzi do koncentracji naprężeń, dlatego prawidłowe wygięcie lub połączenie prętów na zakład jest absolutnie kluczowe dla zachowania integralności konstrukcji.
Problem nr 2: Niewłaściwa otulina betonu i ryzyko korozji zbrojenia
Otulina betonowa to warstwa betonu, która oddziela stal zbrojeniową od środowiska zewnętrznego. Jej zadaniem jest przede wszystkim ochrona stali przed korozją. Jeśli pręty zbrojeniowe znajdują się zbyt blisko krawędzi szalunku (czyli otulina jest zbyt mała), wilgoć i tlen z powietrza mogą łatwo dotrzeć do stali, powodując jej rdzewienie. Skorodowane zbrojenie traci swoją wytrzymałość, a jego objętość zwiększa się, co prowadzi do pękania betonu. Aby zapewnić prawidłową grubość otuliny, należy stosować specjalne podkładki dystansowe, które utrzymują pręty w odpowiedniej odległości od szalunku.
Problem nr 3: Nieszczelny szalunek i osłabienie konstrukcji
Niestabilny lub nieszczelny szalunek to prosta droga do problemów. Jeśli szalunek nie jest solidnie złożony i podparty, pod ciężarem betonu może ulec deformacji, co spowoduje, że wieniec będzie miał niewłaściwy kształt lub wymiary. Co gorsza, nieszczelności w szalunku prowadzą do wycieku mleczka cementowego najdrobniejszych cząstek betonu wraz z wodą. Taki wyciek osłabia beton w miejscu ubytku, tworząc porowatą i mniej wytrzymałą strukturę. Aby temu zapobiec, szalunek musi być szczelny, stabilny i dokładnie spasowany.
Problem nr 4: Stosowanie "chudego" betonu i brak odpowiedniego wibrowania
Stosowanie betonu o zbyt niskiej klasie wytrzymałości, potocznie nazywanego "chudym" betonem, jest błędem, który bezpośrednio obniża nośność wieńca. Taki beton nie jest w stanie przenieść przewidzianych obciążeń. Równie poważnym zaniedbaniem jest brak mechanicznego zagęszczania betonu (wibrowania). Niewibrowany beton zawiera pęcherzyki powietrza, co sprawia, że jest porowaty, mniej wytrzymały i bardziej podatny na działanie mrozu oraz wilgoci. Zawsze należy używać betonu o klasie zgodnej z projektem i dokładnie go wibrować, aby zapewnić mu maksymalną gęstość i wytrzymałość.
Wieniec w kontekście całej budowy: współpraca z innymi elementami
Wieniec nie jest elementem izolowanym; ściśle współpracuje z innymi częściami budynku. Zrozumienie tych zależności jest kluczowe dla prawidłowego funkcjonowania całej konstrukcji.
Wieniec na ściance kolankowej: jak solidnie połączyć dach ze ścianami?
Na poddaszu, zwłaszcza w domach z dachem spadzistym, często mamy do czynienia ze ścianką kolankową. Wieniec na ściance kolankowej pełni niezwykle ważną rolę. Nie tylko wzmacnia samą ściankę, ale przede wszystkim przenosi obciążenia z dachu na niższe kondygnacje. Jest on również kluczowym elementem do kotwienia murłaty, czyli drewnianej belki, na której opiera się cała więźba dachowa. Solidne połączenie murłaty z wieńcem za pomocą odpowiednich kotew gwarantuje stabilność i odporność dachu na siły wiatru.
Ocieplenie wieńca: jak zapobiec powstawaniu mostków termicznych?
Wieniec, jako element żelbetowy, ma znacznie lepsze przewodnictwo cieplne niż ściany murowane. W ścianach warstwowych, gdzie wieniec przechodzi przez całą grubość ściany, może on niestety tworzyć mostek termiczny. Jest to miejsce, przez które ciepło ucieka z budynku, prowadząc do strat energii i powstawania zawilgoceń. Aby temu zapobiec, wieniec wymaga odpowiedniej izolacji termicznej, najczęściej od strony zewnętrznej. Stosuje się do tego styropian lub wełnę mineralną, które są montowane w szalunku przed zalaniem betonu. Prawidłowe ocieplenie wieńca to inwestycja, która zwraca się w niższych rachunkach za ogrzewanie i komfortowym mikroklimacie w domu.
Przeczytaj również: Rewolucja 2025: Jawne ceny mieszkań deweloperskich. Negocjuj lepiej!
Czy w każdym budynku wieniec jest absolutnie konieczny?
Podsumowując, z mojego doświadczenia wynika, że wieniec jest elementem absolutnie niezbędnym w zdecydowanej większości nowoczesnych budynków murowanych, zwłaszcza tych wielokondygnacyjnych. Pełni on kluczową rolę w zapewnieniu stabilności, sztywności i bezpieczeństwa konstrukcji. Choć istnieją specyficzne technologie budowlane (np. niektóre konstrukcje szkieletowe), gdzie jego funkcja jest realizowana inaczej, w tradycyjnym budownictwie murowanym nie ma od niego ucieczki. Zawsze jednak konieczność jego wykonania, rodzaj oraz szczegółowa specyfikacja wynikają z indywidualnego projektu architektoniczno-budowlanego. To projektant, na podstawie obliczeń, określa wszystkie parametry wieńca, a my, jako wykonawcy, musimy się ich bezwzględnie trzymać.
